NVG Atelier
Home
About Me
Resume
Portfolio
Projects
Art Gallery
Contact
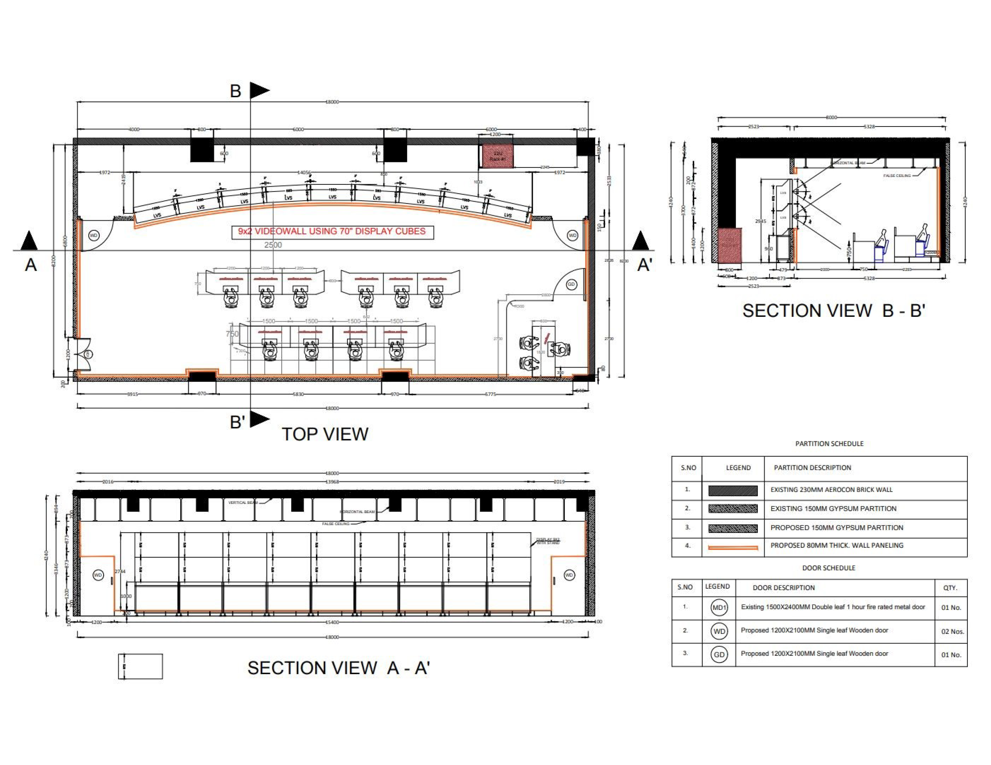
Tafinet NOC
Posted by:
|
On:
February 5, 2025
|
Posted by
in